Funkce uživatele
Moje oblíbené nemovitosti Moje oblíbené nemovitosti Moje filtry Moje filtry Upravit profil Upravit profil Vložit inzerát Vložit inzerát
Region
mapa

28 000 000 Kč

G

Mimořádně nehospodárná

Hypotéku?
  • Včetně právních služeb a všech poplatků
Hypotéku?

Zjistěte zdarma a nezávazně své možnosti hypotéky u této nemovitosti.

Do oblíbených
Do oblíbených
Nemovitost nabízí
Jaromír Kohut

Stěhuju.cz

Kalkulace stěhování do 90 sekund

Malování

Zajištění malíře už od 2.500 Kč

Základní informace

Dopravní spojení Autobus, Vlak, MHD, Silnice, Dálnice
Inženýrské sítě Plyn
Datum vložení před 16 dny
Plocha celková 1 356 m²
Plocha zastavěná 1 356 m²
Elektřina 400 V
Parkování Parkování na ulici
Cena 28 000 000 Kč
Spočítat hypotéku
Plocha pozemku 7 251 m²
Patro 1.
Kanalizace Veřejná kanalizace
ID nemovitosti 125059
Stav nemovitosti K rekonstrukci
Plocha užitná 3 400 m²
Energetická náročnost G - Mimořádně nehospodárná

Popis nemovitosti

Nabízíme k prodeji jedinečnou komerční nemovitost s vypracovanou architektonickou studií přestavby objektu na moderní rezidenční bydlení.
Tento projekt představuje výjimečnou investiční příležitost v atraktivní lokalitě Ostravy pouze 10 minut od centra města.
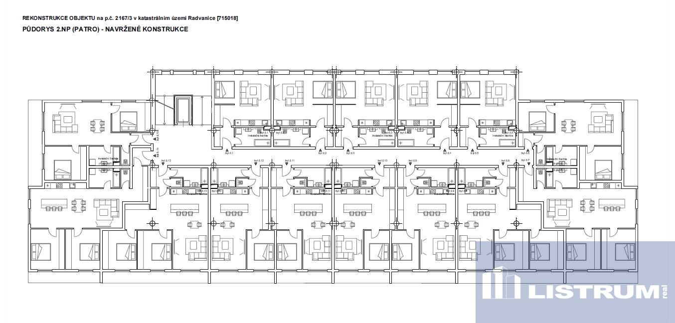
Projekt počítá s vybudováním 30 bytových jednotek ve dvou nadzemních podlažích a s možností využití suterénu pro technické zázemí či skladovací prostory.
Budova s robustní železobetonovou konstrukcí je uvnitř vybourána a nachystána na zahájení rekonstrukce.
Základní informace:
- Zastavěná plocha budovy: 1 356 m
- Celková výměra pozemku: 7 251 m
- Konstrukce: železobetonový skelet robustní a variabilní pro budoucí využití
- Stav: interiér je kompletně vybourán a připraven pro rekonstrukci dle vypracované studie
Projektová studie:
- Suterén skladové prostory, technické zázemí, případně jiné komerční využití
- 1. NP 15 bytových jednotek
- 2. NP 15 bytových jednotek
- Možnost doplnit o kanceláře či menší provozovny dle potřeb investora

Lokalita a občanská vybavenost:
- Nemovitost se nachází v klidnější části města, zároveň pouze 10 minut od centra Ostravy
- Výborná dopravní dostupnost přímo u objektu se nachází autobusová zastávka
- V těsné blízkosti supermarket Penny Market
- KouPark sportovně-rekreační areál pro děti i dospělé ve vzdálenosti 800 m
- Klidné prostředí pro rezidenční bydlení, ale zároveň blízkost centra města pro komerční aktivity

Proč investovat právě zde:
- Železobetonový skelet umožňuje variabilní řešení dispozic a zajišťuje dlouhou životnost stavby
- Hotová studie rekonstrukce ušetří investorovi čas i náklady na přípravu projektu
- Lukrativní lokalita s rostoucí poptávkou po bydlení i komerčních prostorech se snadným parkováním
- Velký rozsah pozemku poskytuje prostor pro další využití nebo rozšíření projektu
- Kombinace skladových, kancelářských a rezidenčních prostor zaručuje široké možnosti budoucího pronájmu a stabilní výnos

Tento projekt je vhodný pro investory, kteří hledají nemovitost s jasně definovaným potenciálem a atraktivní návratností.


Poloha na mapě

Dojezdová vzdálenost

Zadejte cílovou adresu
Zadejte cílovou adresu
Zadejte cílovou adresu

Nemovitost nabízí

 Jaromír  Kohut
Jaromír Kohut
Telefon zobrazit telefon

Nemovitost nabízí

 Jaromír  Kohut
Jaromír Kohut
Telefon zobrazit telefon